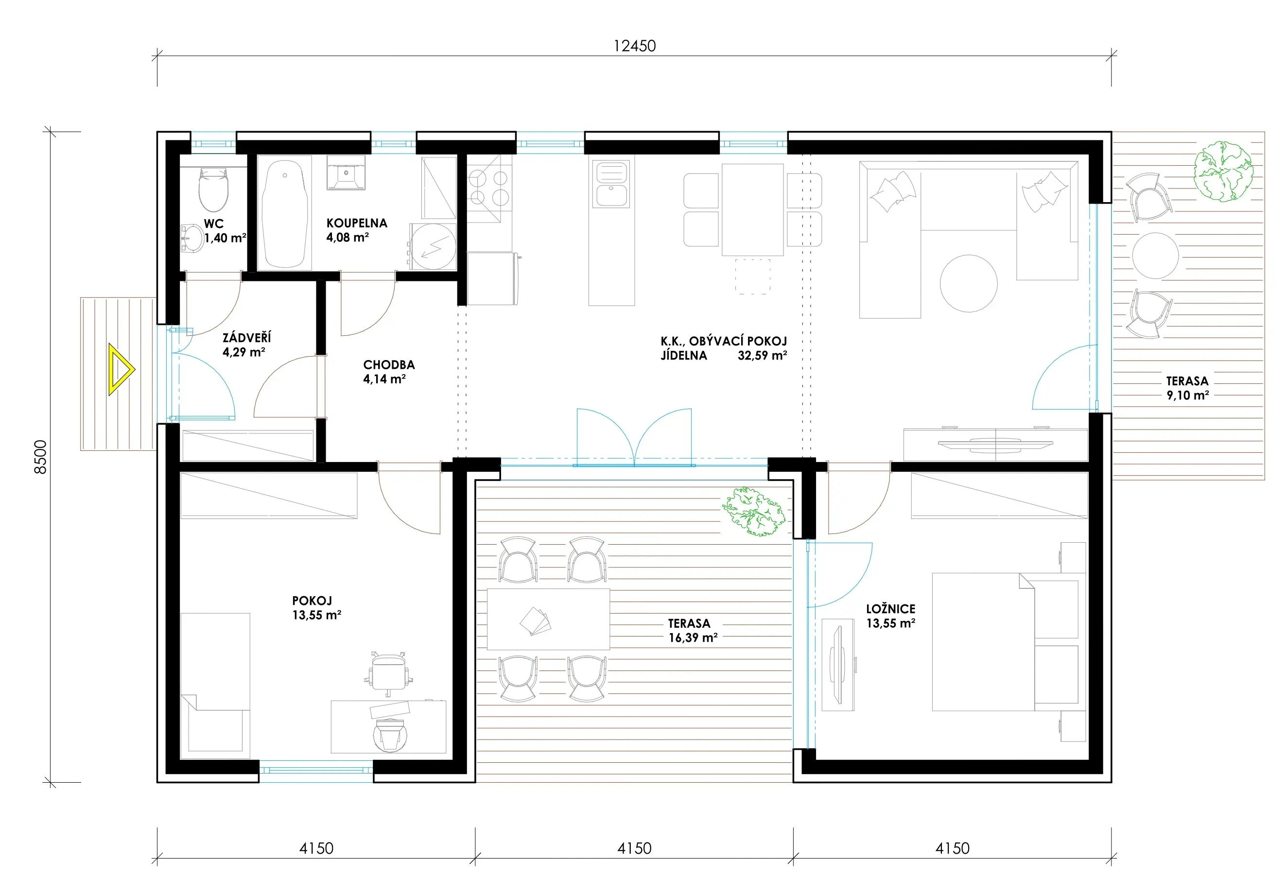
Dispozice
3+KK
Zastavěná plocha
89.43 m²
Podlahová plocha
—
Cena bez DPH
2 412 284,- Kč
Půdorys domu
Co je v ceně domu?
- Dům
- Projektová dokumentace modulového domu, osazení do terénu, PBŘS, PENB
- Železný rám(nosná konstrukce)
- Plastová okna značky PKS (okna-profil 6 komor se třemi těsněními a trojsklem) nebo Vekra barva dle vlastního výběru ze vzorníku
- Vchodové dveře a vnitřní obložkové dveře s kováním
- Sprchový kout (litý mramor, zástěna čiré sklo) 80x80 / 90x90 cm + sprchový set, umyvadlo se skříňkou a baterií, závěsný set WC modul Geberit + záchodová mísa + tlačítko
- Obklady a dlažba do koupelny
- Vinylová role dle vlastního výběru ze vzorníku (volitelné: vinyl, laminátová nebo dřevěná podlaha, keramika atd.) s obvodovými lištami
- Elektrorozvody, rozvody vody a odpadu
- Zásuvky, vypínače, LED světla na strop
- Vytápění elektrickými nástěnnými konvektory (volitelné: podlahové topení, topné folie, fotovoltaika, tepelné čerpadlo a další); v koupelně elektrický žebřík a elektrický ohřivač vody 80L
- Výmalba 2x bílou barvou + penetrace
- Vnitřní i venkovní parapety
- Střecha Satjam Trend, svody, okapy
- Fasáda 1,5mm
- Barva střechy a fasády dle vlastního výběru ze vzorníku, bez příplatku
Další fotografie





Bydlet můžete již za 3 měsíce!
