Fotografie domu

Dispozice

2+KK

Zastavěná plocha

53.37 m²

Podlahová plocha

43.01 m²

Cena bez DPH

1 729 081,- Kč

Detaily domu

T ento modulový dům je oblíbený především kvůli své příznivé ceně a chytrému řešení prostoru. I když se jedná o druhý nejmenší dům, rozhodně se v něm nebudete cítit stísněně. Jistě vás mile překvapí velké množství světla, které díky tvaru domu a rozlehlé terase proniká do interiéru. Každý jistě ocení možnost přístupu na terasu z obývacího pokoje i ložnice. Stačí jen otevřít a vychutnat si chvíle pohody.

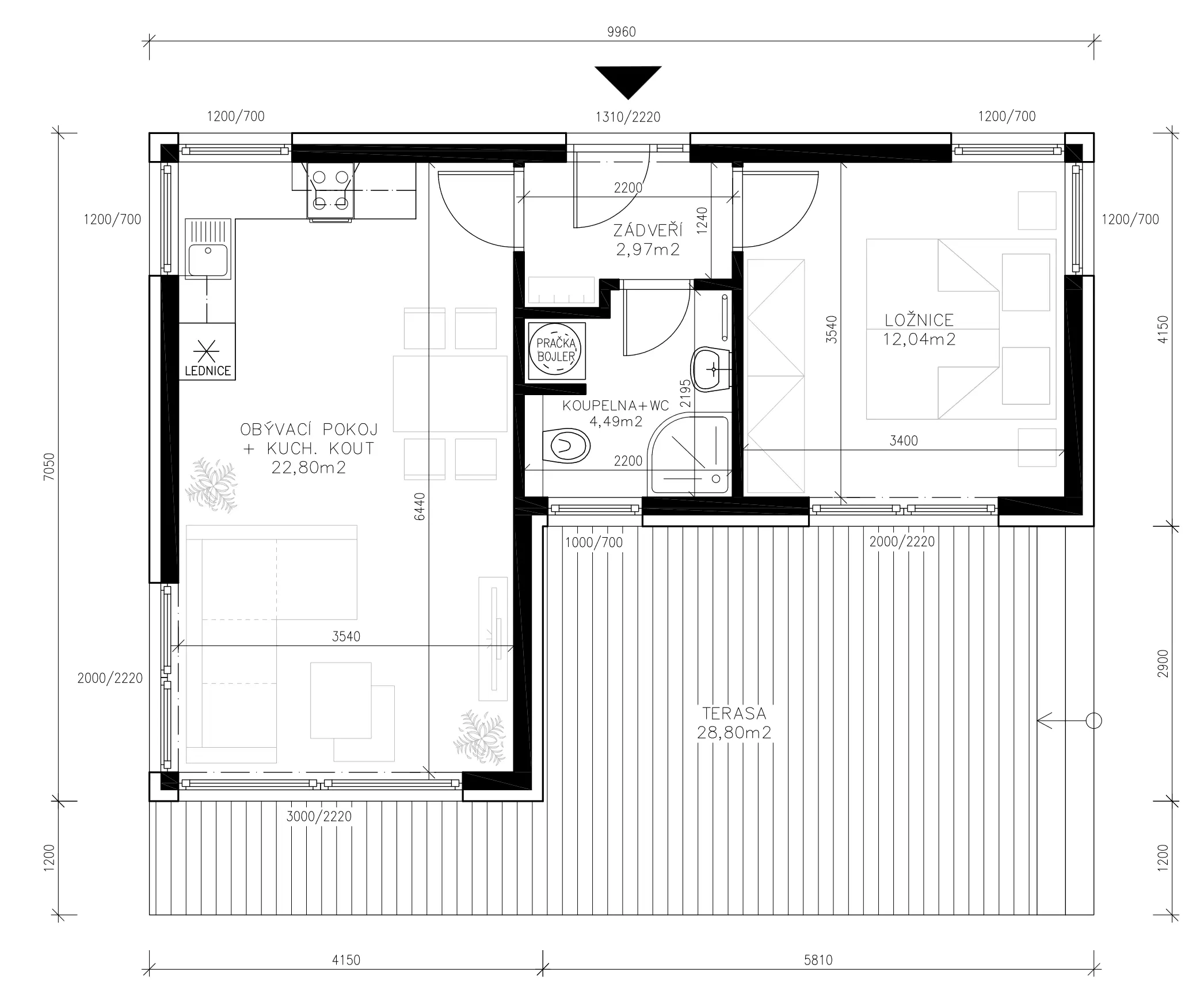
Půdorys domu

Půdorys domu

Co je v ceně domu?

  • Dům
  • Projektová dokumentace modulového domu, osazení do terénu, PBŘS, PENB
  • Železný rám(nosná konstrukce)
  • Plastová okna značky PKS (okna-profil 6 komor se třemi těsněními a trojsklem) nebo Vekra barva dle vlastního výběru ze vzorníku
  • Vchodové dveře a vnitřní obložkové dveře s kováním
  • Sprchový kout(litý mramor, zástěna čiré sklo) 80x80cm + sprchový set, umyvadlo se skříňkou a baterií, závěsný set WC modul Geberit + záchodová mísa + tlačítko
  • Obklady a dlažba do koupelny
  • Vinylová role dle vlastního výběru ze vzorníku (volitelné: vinyl, laminátová nebo dřevěná podlaha, keramika atd.) s obvodovými lištami
  • Elektrorozvody, rozvody vody a odpadu
  • Zásuvky, vypínače, LED světla na strop
  • Vytápění elektrickými nástěnnými konvektory(volitelné: podlahové topení, topné folie, fotovoltaika, tepelné čerpadlo a další) v koupelně elektrický žebřík a elektrický ohřivač vody 80L
  • Výmalba 2x bílou barvou+penetrace
  • Vnitřní i venkovní parapety
  • Střecha, svody, okapy
  • Fasáda 1,5mm
  • Barva střechy a fasády dle vlastního výběru ze vzorníku, bez příplatku

Další fotografie

Bydlet můžete již za 3 měsíce!

Vizualizace